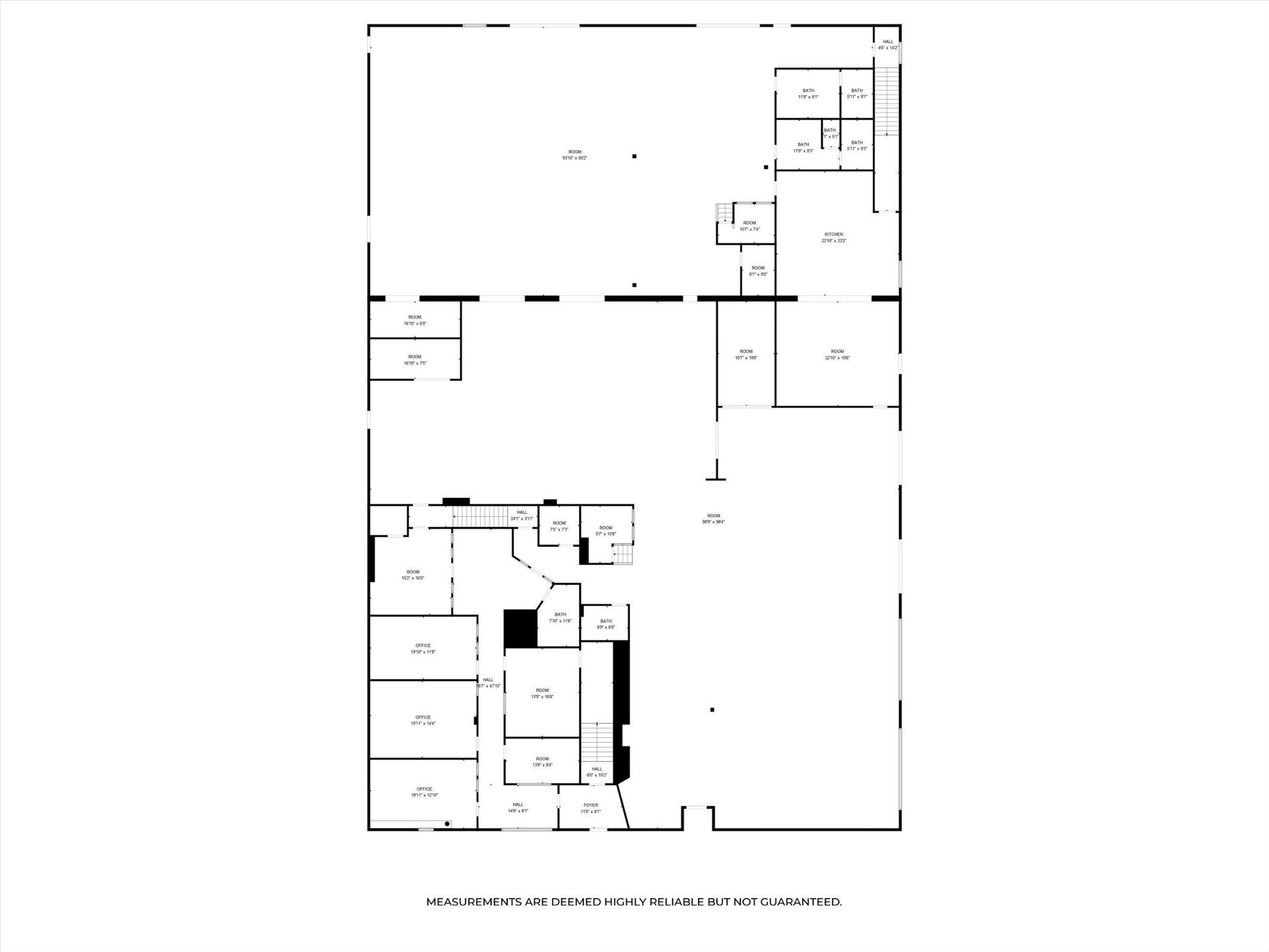
This completely remodeled 3200 sqft of high quality office space is the best deal in downtown Bay City! Featuring 6 nicely sized offices, renovated bathroom & kitchenette/lounge area- there's room for all of your business & meeting space requirements! List price is based on a 5 year lease. **Available lease space is the lower left quadrant of the floorplan in photos**

Provided through IDX via MiRealSource. Courtesy of MiRealSource Shareholder. Copyright MiRealSource.
The information published and disseminated by MiRealSource is communicated verbatim, without change by MiRealSource, as filed with MiRealSource by its members. The accuracy of all information, regardless of source, is not guaranteed or warranted. All information should be independently verified.
Copyright 2026 MiRealSource. All rights reserved. The information provided hereby constitutes proprietary information of MiRealSource, Inc. and its shareholders, affiliates and licensees and may not be reproduced or transmitted in any form or by any means, electronic or mechanical, including photocopy, recording, scanning or any information storage and retrieval system, without written permission from MiRealSource, Inc.
©2026
All information provided is deemed reliable but is not guaranteed and should be independently verified. Participants are required to indicate on their websites that the information being provided is for consumers' personal, non-commercial use and may not be used for any purpose other than to identify prospective properties consumers may be interested in purchasing. Listing By: Shelley Niedzwiecki of Ayre/Rhinehart Bay REALTORS
This listing last updated: Mon, November 24, 2025 at 3:11:06 PM EST
MIRealSource Listing Data Last Updated On Wednesday, April 1 2026 at 9:15pm