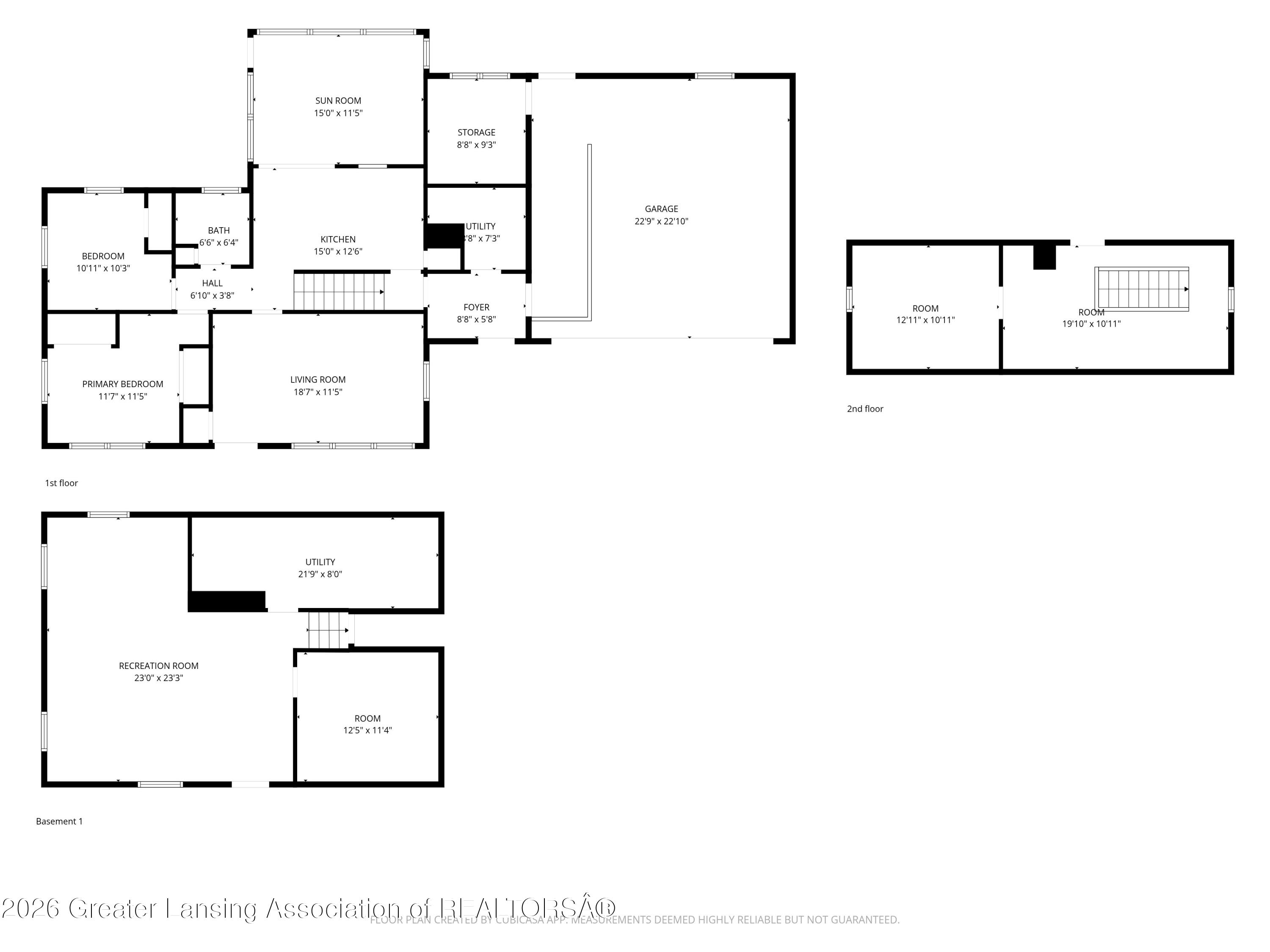
A wonderful opportunity with this unique home. Sitting on a nice country lot, just shy of an acre, The main house is a 3 bedroom, 1 bath cape cod with an attached garage. The addition of a 4 season room provided a dining room and access to the deck/back yard. Two bedrooms on the main floor and one up with a landing area. Full basement under the main house with a crawl space under the 4 season addition. First floor laundry. A large back yard shed. An in-law apartment was added in 1989. A 576sf - one bedroom, one bath with an open living area. This was later turned into a woodshop with the kitchen cabinets removed. This could be returned to an apartment for income or an in-law apartment again. Property is an estate, being sold as is.

Provided through IDX via MiRealSource. Courtesy of MiRealSource Shareholder. Copyright MiRealSource.
The information published and disseminated by MiRealSource is communicated verbatim, without change by MiRealSource, as filed with MiRealSource by its members. The accuracy of all information, regardless of source, is not guaranteed or warranted. All information should be independently verified.
Copyright 2026 MiRealSource. All rights reserved. The information provided hereby constitutes proprietary information of MiRealSource, Inc. and its shareholders, affiliates and licensees and may not be reproduced or transmitted in any form or by any means, electronic or mechanical, including photocopy, recording, scanning or any information storage and retrieval system, without written permission from MiRealSource, Inc.
©2026
All information provided is deemed reliable but is not guaranteed and should be independently verified. Participants are required to indicate on their websites that the information being provided is for consumers' personal, non-commercial use and may not be used for any purpose other than to identify prospective properties consumers may be interested in purchasing. Listing By: Kim Henderson of Gateway to Homes
This listing last updated: Sat, April 04, 2026 at 12:21:25 AM EDT
MIRealSource Listing Data Last Updated On Saturday, April 4 2026 at 2:16am