$22 for Lease
2301 wildwood, jackson, MI 49202
Property Description
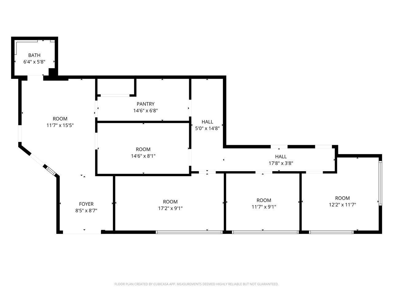
This professional office space offers a unique opportunity within a well-established chiropractic practice, conveniently located on a high-traffic road with excellent visibility. The available lease includes three private rooms, ideal for healthcare professionals, wellness providers, or other small business uses. Tenants will benefit from a private entrance, allowing for independent access and flexible operating hours separate from the main office. The space includes access to a shared restroom and is designed to support a comfortable and professional working environment. All utilities and exterior maintenance are included in the monthly rent, including heat, electricity, lawn care, and snow removal--providing a hassle-free leasing experience with predictable costs .The full three-room suite is available for $1,200 per month. Individual rooms may also be leased separately for $400 per month each, offering flexibility for solo practitioners or small operations.
General Information
Lease Price: $22
Price/SqFt: $0
Status: Active
MLS#: 70522894
City: blackman twp
Post Office: jackson
County: Jackson
Acres: 0.18
Lot Dim: 60x132
Size: 576 sq.ft.
Acreage: 0.18 est.
Year Built: 1970
Property Type: Commercial/Industrial
Tax, Fees & Legal

Provided through IDX via MiRealSource. Courtesy of MiRealSource Shareholder. Copyright MiRealSource.
The information published and disseminated by MiRealSource is communicated verbatim, without change by MiRealSource, as filed with MiRealSource by its members. The accuracy of all information, regardless of source, is not guaranteed or warranted. All information should be independently verified.
Copyright 2026 MiRealSource. All rights reserved. The information provided hereby constitutes proprietary information of MiRealSource, Inc. and its shareholders, affiliates and licensees and may not be reproduced or transmitted in any form or by any means, electronic or mechanical, including photocopy, recording, scanning or any information storage and retrieval system, without written permission from MiRealSource, Inc.
©2026
All information provided is deemed reliable but is not guaranteed and should be independently verified. Participants are required to indicate on their websites that the information being provided is for consumers' personal, non-commercial use and may not be used for any purpose other than to identify prospective properties consumers may be interested in purchasing. Listing By: STACY YOUNG of The Brokerage House
This listing last updated: Thu, April 02, 2026 at 2:11:21 PM EDT
MIRealSource Listing Data Last Updated On Monday, April 6 2026 at 4:38am