$589,900 for Sale
12240 green road, goodrich, MI 48438
| Beds 4 | Baths 3 | 2,733 Sqft | 3.22 Acres |
|
1 of 50 |
Property Description
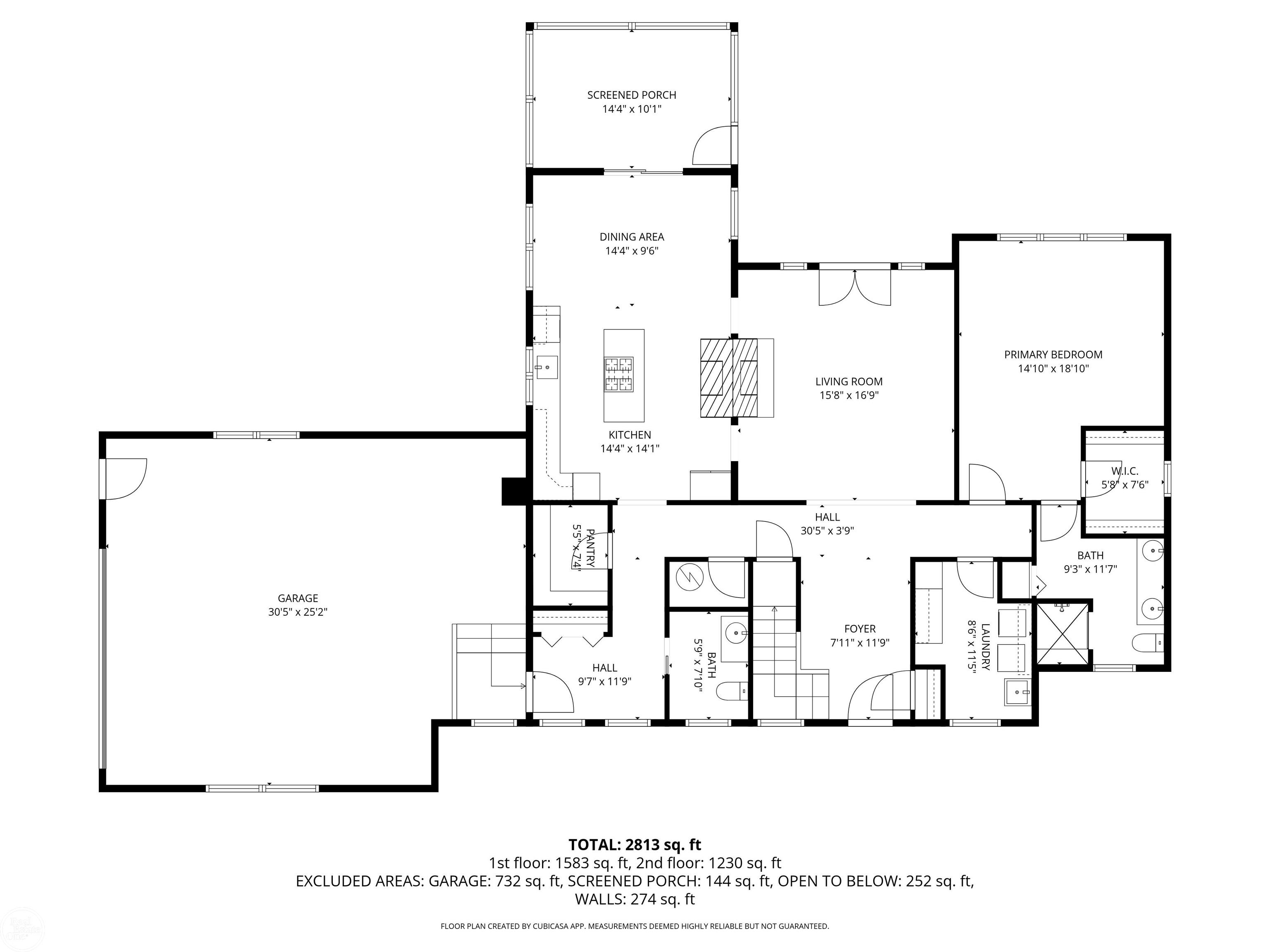
The perfect blend of country living & modern convenience in this custom home on over 3 acres w/ tranquil pond views and a fenced backyard retreat. Inside, soaring ceilings and expansive windows fill the home with natural light, highlighting the spacious, open layout. The stunning two-story great room features hardwood flooring and a striking two-sided stone fireplace that flows seamlessly into the kitchen with plentiful cabinetry, oversized island, granite countertops, stainless steel appliances, walk-in pantry and a large eating area, plus a screened porch off the back—ideal for relaxing. The first-floor primary suite offers a walk-in closet & private bath, upstairs you’ll find a loft that could be an office or sitting area, two additional generous bedrooms, a full bath, & a huge bonus room that could easily serve as a fourth bedroom or additional living space. Additional features include a brand new roof, deep cement crawl space with stair access—perfect for storage—new water filtration system, and dual sump pumps. A Generac generator, Tesla Powerwall & smart switches throughout, Spectrum 1Gbps cable internet, and Starlink availability. A rare opportunity to enjoy serene surroundings without sacrificing today’s high-tech amenities! Goodrich schools and keys at the closing make this the perfect home
General Information
City: atlas twp
Post Office: goodrich
Schools: goodrich area school district
County: Genesee
Subdivision: rural
Acres: 3.22
Lot Dim: 360x336x359x332
Bedrooms:4
Bathrooms:3 (2 full, 1 half)
House Size: 2,733 sq.ft.
Acreage: 3.22 est.
Year Built: 2007
Property Type: Single Family
Style: Split Level
Features & Room Sizes
Bedroom 1: 19x15
Bedroom 2 : 18x11
Bedroom 3: 16x12
Bedroom 4: 30x20
Family Room:
Greatroom:
Dining Room:
Kitchen: 14x14
Livingroom:
Pole Buildings:
Paved Road: Gravel
Garage: 2.5
Garage Description: Attached Garage,Electric in Garage,Gar Door Opener,Side Loading Garage
Exterior: Vinyl Siding
Exterior Misc: Fenced Yard,Patio,Porch
Fireplaces: Yes
Fireplace Description: Gas Fireplace,Grt Rm Fireplace
Basement: No
Basement Description: Poured
Foundation : Crawl
Appliances: Dishwasher,Humidifier,Microwave,Range/Oven,Refrigerator,Water Softener - Owned
Cooling: Central A/C
Heating: Forced Air
Fuel: Natural Gas
Waste: Septic
Watersource: Private Well,Public Water at Street
Tax, Fees & Legal
Est. Summer Taxes: $1,435
Est. Winter Taxes: $3,373

Provided through IDX via MiRealSource. Courtesy of MiRealSource Shareholder. Copyright MiRealSource.
The information published and disseminated by MiRealSource is communicated verbatim, without change by MiRealSource, as filed with MiRealSource by its members. The accuracy of all information, regardless of source, is not guaranteed or warranted. All information should be independently verified.
Copyright 2026 MiRealSource. All rights reserved. The information provided hereby constitutes proprietary information of MiRealSource, Inc. and its shareholders, affiliates and licensees and may not be reproduced or transmitted in any form or by any means, electronic or mechanical, including photocopy, recording, scanning or any information storage and retrieval system, without written permission from MiRealSource, Inc.
©2026
All information provided is deemed reliable but is not guaranteed and should be independently verified. Participants are required to indicate on their websites that the information being provided is for consumers' personal, non-commercial use and may not be used for any purpose other than to identify prospective properties consumers may be interested in purchasing. Listing By: Kimberly Drescher Tanascu of Real Estate One Inc-Shelby
This listing last updated: Tue, April 07, 2026 at 12:18:22 AM EDT
MIRealSource Listing Data Last Updated On Tuesday, April 7 2026 at 2:38am