$199,000 for Sale
1035 ethel, hancock, MI 49930
Property Description
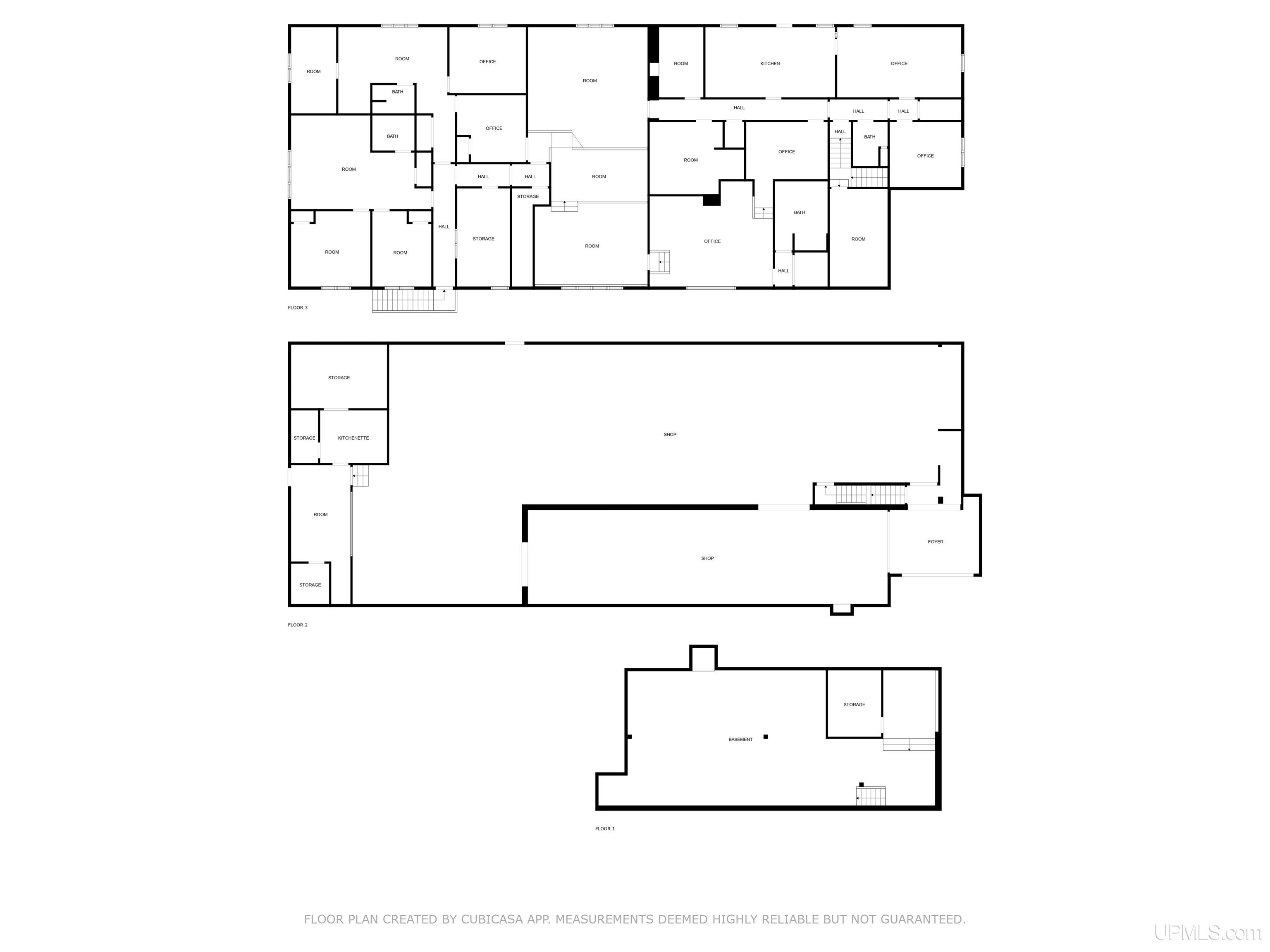
*** Seller is encouraging reasonable offers for their consideration!! *** Redevelopment opportunity in West Hancock! This building has over 9,000+/- square feet of potential! Previous uses have been mixed with commercial and multi-family. Building is situated on a corner lot and has paved parking. Roof age is estimated as follows: flat membrane roof 19+/- years; South 1/2 of shingled roof 11 years; North 1/2 of shingled roof 20+. Heating system: New furnace installed August 2020 for the main level store. Store water heater installed around 2020+/-. Convenient location to the Hancock Schools, U.P. Health System ? Portage, Laurn Grove Park, recreational trails and the Houghton County Arena and Fairgrounds. The upper level has potential for 3-4 apartments. Heat: Main store area is forced air. Upper level is electric baseboard. Seller would entertain an offer including any personal property or other items remaining at the time of closing. Seller reserves the right to sell or remove any personal property, shelving, equipment etc. prior to closing, unless otherwise agreed upon in a written offer. Seller will be removing the murals from the exterior of the building. Seller is selling AS-IS. Restriction on use for future owners that will run with the land: No future use shall be for grocery, deli, natural foods, vitamins or supplements or other related goods that would be deemed competition to the services of The Keweenaw Cooperative, Inc. as operating in the new location at 610 Quincy St, Hancock, MI. This wording is subject to updating by Seller's attorney prior to closing and with prior notice to the Buyer. NOTICE: All information believed accurate but not warranted. Buyer recommended to inspect & verify all aspects of the property & bares all risks for any inaccuracies including but not limited to estimated acreage, lot location/size, square footage, utilities (availability & costs associated). Real estate taxes are subject to change (possibly significant) & municipality reassessment after sale. Buyer should NOT assume that buyer?s tax bills will be similar to the seller?s current tax bills. Taxes are not zero. Audio/video recording devices may be present on property and entering the property shall be considered consent to be recorded. OFFERS: 72 hours response time requested on offers. Seller, at seller's sole discretion, with or without notice, reserves the right to set and/or modify offer submission & response deadlines.
General Information
Sale Price: $199,000
Price/SqFt: $21
Status: Active
MLS#: 50174608
City: hancock
Post Office: hancock
County: Houghton
Acres: 0.27
Lot Dim: 98x119x101x118+/-
Size: 9,422 sq.ft.
Acreage: 0.27 est.
Year Built: 1900
Property Type: Commercial/Industrial
Tax, Fees & Legal
Est. Summer Taxes: $0
Est. Winter Taxes: $0

Provided through IDX via MiRealSource. Courtesy of MiRealSource Shareholder. Copyright MiRealSource.
The information published and disseminated by MiRealSource is communicated verbatim, without change by MiRealSource, as filed with MiRealSource by its members. The accuracy of all information, regardless of source, is not guaranteed or warranted. All information should be independently verified.
Copyright 2026 MiRealSource. All rights reserved. The information provided hereby constitutes proprietary information of MiRealSource, Inc. and its shareholders, affiliates and licensees and may not be reproduced or transmitted in any form or by any means, electronic or mechanical, including photocopy, recording, scanning or any information storage and retrieval system, without written permission from MiRealSource, Inc.
©2026
All information provided is deemed reliable but is not guaranteed and should be independently verified. Participants are required to indicate on their websites that the information being provided is for consumers' personal, non-commercial use and may not be used for any purpose other than to identify prospective properties consumers may be interested in purchasing. Listing By: KRISTINE WEIDNER (JUKURI) of CENTURY 21 AFFILIATED
This listing last updated: Fri, March 27, 2026 at 2:08:22 PM EDT
MIRealSource Listing Data Last Updated On Thursday, April 2 2026 at 8:15am