$47,000 for Sale
3573 m35 highway, negaunee, MI 49866
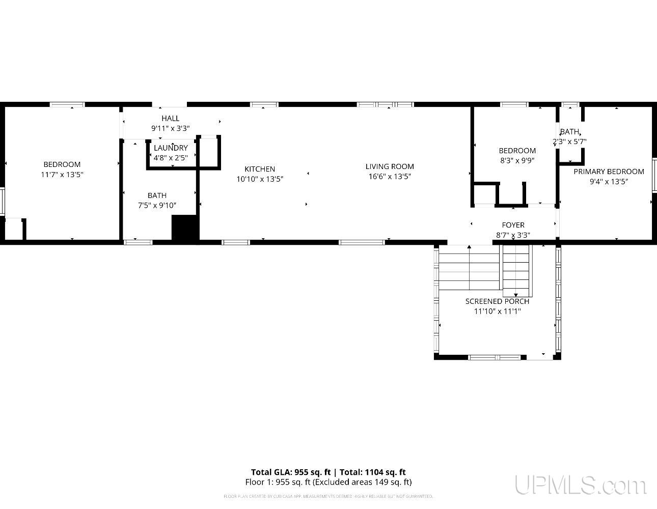
| Beds 3 | Baths 2 | 955 Sqft | 0.75 Acres |
|
1 of 36 |
Property Description
Looking for space, potential, and a great price? This 3-bedroom, 1–2 bath home sits on nearly 1 acre of beautiful country land with room to grow! Enjoy the peaceful setting with easy main road access, just about 20 minutes from Marquette. Surrounded by nature and close to miles of ATV and snowmobile trails. The property features a full basement with vehicle access, perfect for storage, hobby work, or even your own repair setup. There is also a barn style shed for added space and flexibility. While parts of the home could use some TLC, there is a new propane efficiency furnace, kitchen appliances and some new plumbing, and the value here is unbeatable having a well, septic and a large lot — it could make an excellent future building site. Plus, a new water line from the well pump house for peace of mind. Home is occupied and Taxes are not "0" they will change upon sale, buyers must be preapproved for this specific type of property purchase prior to showing. Cash, in-house or conventional finance. 1/2 bath toilet does need to be replaced. Extra wood stove in basement is not included in sale (it is vented to outside only and not functional) there is another unit that will stay in photos. W/D are not included in sale. According to Richmond Twp, you are able to place a manufactured home there and remove the current. Buyers would need to verify on their own.
General Information
City: richmond twp
Post Office: negaunee
Schools: negaunee public schools
County: Marquette
Subdivision: eden estates legal
Acres: 0.75
Lot Dim: 150x150 approx
Bedrooms:3
Bathrooms:2 (1 full, 1 half)
House Size: 955 sq.ft.
Acreage: 0.75 est.
Year Built: 1977
Property Type: Single Family
Style: Manufactured
Features & Room Sizes
Bedroom 1: 11x13
Bedroom 2 : 9x13
Bedroom 3: 9x8
Bedroom 4:
Family Room:
Greatroom:
Dining Room:
Kitchen: 10x13
Livingroom: 16x13
Outer Buildings: Shed
Pole Buildings:
Paved Road: Access,City/County,Paved Street,Year Round
Garage: No Garage
Garage Description: Basement Access
Exterior: Aluminum
Exterior Misc: None (ExteriorFeatures)
Fireplaces: Yes
Fireplace Description: Other (FireplaceFeatures)
Basement: Yes
Basement Description: Block
Foundation : Basement
Appliances: Range/Oven,Refrigerator
Cooling: Ceiling Fan(s)
Heating: Forced Air
Fuel: LP/Propane Gas
Waste: Septic
Watersource: Drilled Well
Tax, Fees & Legal
Est. Summer Taxes: $0
Est. Winter Taxes: $0
HOA fees:

Provided through IDX via MiRealSource. Courtesy of MiRealSource Shareholder. Copyright MiRealSource.
The information published and disseminated by MiRealSource is communicated verbatim, without change by MiRealSource, as filed with MiRealSource by its members. The accuracy of all information, regardless of source, is not guaranteed or warranted. All information should be independently verified.
Copyright 2026 MiRealSource. All rights reserved. The information provided hereby constitutes proprietary information of MiRealSource, Inc. and its shareholders, affiliates and licensees and may not be reproduced or transmitted in any form or by any means, electronic or mechanical, including photocopy, recording, scanning or any information storage and retrieval system, without written permission from MiRealSource, Inc.
©2026
All information provided is deemed reliable but is not guaranteed and should be independently verified. Participants are required to indicate on their websites that the information being provided is for consumers' personal, non-commercial use and may not be used for any purpose other than to identify prospective properties consumers may be interested in purchasing. Listing By: MELISSA LEHTOMAKI of RE/MAX 1ST REALTY
This listing last updated: Tue, March 31, 2026 at 10:21:18 PM EDT
MIRealSource Listing Data Last Updated On Monday, April 6 2026 at 6:45pm